Lakefront Brewery Adding Riverside Amenities
Will make riverside more pedestrian friendly, more fun for customers.
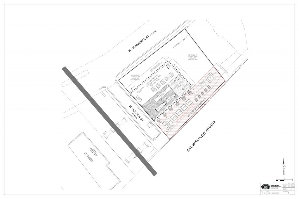
Lakefront Brewery will greatly improve a riverfront property at 1890 N. Commerce St. The 34,094-square-foot lot, located upstream from its home, 1872 N Commerce St., with the Holton Viaduct standing between the two, has been owned since 2014 by Russ Klisch, LLC., whose namesake registered agent is Lakefront’s proprietor. His proposal will be presented to the City of Milwaukee Board of Zoning Appeals on Thursday.
Russ Klisch tells Urban Milwaukee in an email:
I didn’t have much choice but to go to BOZA. It is a long story, but in a nutshell, the city asked me to rent our lot to Zenith Tech for the bridge reconstruction since it would help them and speed up the work, which I did. The Department of Neighborhood Services didn’t like that I had the equipment there and started to fine me and said I needed to go to BOZA to get the zoning changed which I did in fall of 2024. Once I went to BOZA with the zoning request, the plans went to the Department of City Development which made me put up the screening or else I’d have to move everything off my lot. The fence around the lot will also be going away because of this. It will cost me a lot of money but I hope it will make the rest of my lot more pedestrian friendly. It will be my project for 2026.
Latest in Series of Improvements
Not one to shy away from capital improvements, Klisch has undertaken numerous expensive projects since purchasing the former power plant in 1998. These include many expansions of brewery-related operations, as well as amenities for visitors of what is one of the city’s major tourist destinations, drawing tens of thousands annually. Over the years he has improved his beer hall, hung dozens of illuminated barrels on the exterior, created a riverfront dock and stage, and, in 2024, extended his beer garden beneath the towering viaduct.That expansion will be continued in the new space, which is to include:
- Four cabanas
- Five picnic tables
- Five hop houses
- A 10,000-square-foot fenced, screened and partially paved outdoor storage area
- A 6-foot by 12-foot chalet
- An 18-foot by 18-foot children’s playset.
The existing chain link fence surrounding the entire property will be removed. It is presumed that the many hop plants that grow on it will be transplanted to their new houses.
The inclusion of a children’s play area should come as little surprise to brewery regulars. Lakefront’s popular Friday Fish Fry has consistently ranked among the city’s most popular, and family-friendly. It seems at times as if the average age of the customers is twelve.
Was Coal Dock
For decades the site was a dock for the Milwaukee-Western Fuel Company. Giant bulk carriers would unload tons of coal there, while overhead cranes, riding on rails, would fill the company’s fleet of delivery trucks. Milwaukee was the leading incoming Lake Michigan port for coal deliveries for many years. (Chicago’s came by rail.) I witnessed the excavation of the Edge Condominiums which were built on part of the site in 2008. They turned up quite a few piles of the black gold. When plans for a second phase evaporated following the real estate crash of that year, the property was offered for sale, and Klisch bought it, paying $1,192,000 in 2014. The property is currently assessed at $937,600.
There is a bit of irony in the city’s enforcement actions against Klisch’s property. For decades it, in its current state, would have been considered the area’s garden spot, as aerial photographs reveal.














